嗨!这里是【瀚林速成下载】的「速成教程」栏目!小编手把手教避坑技巧,秒速下载+零门槛上手,小白也能丝滑操作!
Autodesk Revit怎么导入cad图纸?想必很多小伙伴都不是很清楚,下面小编给大家整理了相关步骤介绍,感兴趣的小伙伴不要错过哦!
Autodesk Revit怎么导入cad图纸?Autodesk Revit导入cad图纸方法
1.插入多个Revit模型的四种方式,及使用eTransmit插件管理链接文件
2.地点和坐标的常见概念
3.获取坐标,发布坐标及高程
4.共享坐标在实际项目里的综合应用
下面为大家讲解插入多个Revit模型的四种方式,及使用eTransmit插件管理链接文件的方法!
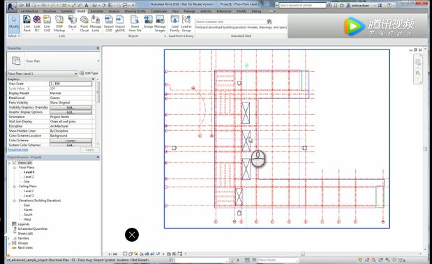
插入2DCAD
当DWG文件为常见的二维平面图纸时,我们可以通过链接CAD(LinkCAD)或者导入CAD(ImportCAD)的方法引入到Revit模型中。
方法一:链接CAD
Revit里的CAD模型和原始的CAD仍然保持关联。当原始CAD修改后,只需打开管理链接,选择对应的CAD重新载入(Reload)即可。需要注意这是一种被动关联,如果你没有选择重新载入,仅刷新Revit模型不会自动载入新的CAD。
方法二:导入CAD
当你选择导入CAD时,Revit里面CAD模型和原CAD模型的关联在导入成功那一刻就断开了,即便你在CAD模型里做了更新,这些修改也不会同步到Revit。若要将这些修改更新到Revit中,只能将原CAD模型删除,重新导入。并且打开管理链接也找不到这种方式载入的CAD。这种方式主要用在将成熟完善的节点做法,从CAD导入到Revit中。导入CAD有一种快捷方式,直接将文件夹中的CAD模型拖入到Revit模型中。
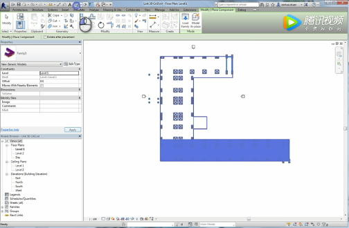
插入3DCAD(例如从Plant3D或者Civil3D输出模型)
将3DCAD图形载入Revit,可以采用定义Revit的族/体量(Mass)手动载入方式或DWGSyncforRevit插件的方式。
方法三:定义Revit的族/体量
为什么要将CAD模型定义为族呢?主要是可以将它指定为相关的类别,不同的类别在Revit里对应着不同的平面及立面切割及显示方式。将3DCAD模型指定为通用族(GenericFamily)载入Revit模型后,当创建一个新的楼层时,Revit自动生成的平面里包含了3DDWG模型的图形信息。当然你要可以指定对应Revit类别的剖切面及投影面的填充方式。
方法四:使用DWGSyncforRevit插件
手动载入手动方法相对繁琐,AutodeskLab里有一款雏形(Beta)阶段的产品DWGSyncforRevit,这是一个免费的插件。
使用DWGSyncforRevit插件,可以一键自动进行上述步骤(DWGImport);如果有新的CAD文件,使用DWGSync命令,即可更新3DDWG文件。这种方式特别适合多单位配合,例如项目里部分是Revit模型,部分是Civil3D,Plant3D模型。
使用eTransmit插件管理链接文件
当我们使用链接模式跟团队合作的时候,不同的链接模型放在不同位置,如果我们需要将模型分享给他人,或需要将模型拷贝到笔记本里使用,经常会发现忘记复制链接的模型和只复制了一部分的情况,另外,即使你都复制了仍然需要重新定义位置,较为麻烦,eTransmit大**利了这一操作,看看怎么做!
以上这篇文章就是Autodesk Revit导入cad图纸方法,有需要的小伙伴快来学习一下吧!
本期「速成教程」就唠到这儿!蹲住【瀚林速成下载】,下期解锁高阶骚操作,卡壳随时留言轰炸小编~
上一篇:腾讯文档设置分享期限的流程介绍
下一篇:ps放大图片保持比例教程
作业帮怎么办题目解析,作业帮搜索题目解题方法!
友赞客服怎么联系,赞友商城联系客服方法!
DJ多多怎么设置成铃声,DJ多多设置铃声方法!
DJ多多会员怎么开启自动扣费,DJ多多开通会员方法!
DJ多多怎么在车子里放歌,DJ多多开启车载模式方法!
五菱汽车app如何进行车主认证,五菱汽车app进行车主认证教程!
暗区突围:无限
星痕共鸣
无限暖暖下载
建造天空岛网页版官网
我的爱车2016老版本下载
模拟生存大冒险app下载官方
米加小镇房子装修app下载安装官方下载
DNF掌游宝2018旧版本下载安装
中介游2022下载旧版
指尖游戏交易电脑版网页
库巴手游2022旧版本下载
尔雅畅游下载官方
kaya游戏盒子2020旧版本下载安装
魔娱司手机网页版
1号游戏福利电脑版网页
享趣手游pc网页版入口
网站地图 湘ICP备13012546号-1
精选实用软件 | 真人直播软件大全 | 好玩热门游戏 | AI工具大全 | 热门pc游戏推荐 | 精选手游 | pc软件大全 | 减肥软件推荐 | 音乐软件推荐 | 短篇小说推荐 | 办公教程 | 全网游戏攻略合集 | 海量资源学习网 | 出行必备 | 手机维修 | 电脑维修教程 | 视频直播软件推荐 |
Autodesk Revit导入cad图纸方法分享
嗨!这里是【瀚林速成下载】的「速成教程」栏目!小编手把手教避坑技巧,秒速下载+零门槛上手,小白也能丝滑操作!
Autodesk Revit怎么导入cad图纸?想必很多小伙伴都不是很清楚,下面小编给大家整理了相关步骤介绍,感兴趣的小伙伴不要错过哦!
Autodesk Revit怎么导入cad图纸?Autodesk Revit导入cad图纸方法
1.插入多个Revit模型的四种方式,及使用eTransmit插件管理链接文件
2.地点和坐标的常见概念
3.获取坐标,发布坐标及高程
4.共享坐标在实际项目里的综合应用
下面为大家讲解插入多个Revit模型的四种方式,及使用eTransmit插件管理链接文件的方法!
插入2DCAD
当DWG文件为常见的二维平面图纸时,我们可以通过链接CAD(LinkCAD)或者导入CAD(ImportCAD)的方法引入到Revit模型中。
方法一:链接CAD
Revit里的CAD模型和原始的CAD仍然保持关联。当原始CAD修改后,只需打开管理链接,选择对应的CAD重新载入(Reload)即可。需要注意这是一种被动关联,如果你没有选择重新载入,仅刷新Revit模型不会自动载入新的CAD。
方法二:导入CAD
当你选择导入CAD时,Revit里面CAD模型和原CAD模型的关联在导入成功那一刻就断开了,即便你在CAD模型里做了更新,这些修改也不会同步到Revit。若要将这些修改更新到Revit中,只能将原CAD模型删除,重新导入。并且打开管理链接也找不到这种方式载入的CAD。这种方式主要用在将成熟完善的节点做法,从CAD导入到Revit中。导入CAD有一种快捷方式,直接将文件夹中的CAD模型拖入到Revit模型中。
插入3DCAD(例如从Plant3D或者Civil3D输出模型)
将3DCAD图形载入Revit,可以采用定义Revit的族/体量(Mass)手动载入方式或DWGSyncforRevit插件的方式。
方法三:定义Revit的族/体量
为什么要将CAD模型定义为族呢?主要是可以将它指定为相关的类别,不同的类别在Revit里对应着不同的平面及立面切割及显示方式。将3DCAD模型指定为通用族(GenericFamily)载入Revit模型后,当创建一个新的楼层时,Revit自动生成的平面里包含了3DDWG模型的图形信息。当然你要可以指定对应Revit类别的剖切面及投影面的填充方式。
方法四:使用DWGSyncforRevit插件
手动载入手动方法相对繁琐,AutodeskLab里有一款雏形(Beta)阶段的产品DWGSyncforRevit,这是一个免费的插件。
使用DWGSyncforRevit插件,可以一键自动进行上述步骤(DWGImport);如果有新的CAD文件,使用DWGSync命令,即可更新3DDWG文件。这种方式特别适合多单位配合,例如项目里部分是Revit模型,部分是Civil3D,Plant3D模型。
使用eTransmit插件管理链接文件
当我们使用链接模式跟团队合作的时候,不同的链接模型放在不同位置,如果我们需要将模型分享给他人,或需要将模型拷贝到笔记本里使用,经常会发现忘记复制链接的模型和只复制了一部分的情况,另外,即使你都复制了仍然需要重新定义位置,较为麻烦,eTransmit大**利了这一操作,看看怎么做!
以上这篇文章就是Autodesk Revit导入cad图纸方法,有需要的小伙伴快来学习一下吧!
本期「速成教程」就唠到这儿!蹲住【瀚林速成下载】,下期解锁高阶骚操作,卡壳随时留言轰炸小编~
上一篇:腾讯文档设置分享期限的流程介绍
下一篇:ps放大图片保持比例教程
作业帮怎么办题目解析 作业帮搜索题目解题方法
作业帮怎么办题目解析,作业帮搜索题目解题方法!
友赞客服怎么联系 赞友商城联系客服方法
友赞客服怎么联系,赞友商城联系客服方法!
DJ多多怎么设置成铃声 DJ多多设置铃声方法
DJ多多怎么设置成铃声,DJ多多设置铃声方法!
DJ多多会员怎么开启自动扣费 DJ多多开通会员方法
DJ多多会员怎么开启自动扣费,DJ多多开通会员方法!
DJ多多怎么在车子里放歌 DJ多多开启车载模式方法
DJ多多怎么在车子里放歌,DJ多多开启车载模式方法!
五菱汽车app如何进行车主认证 五菱汽车app进行车主认证教程
五菱汽车app如何进行车主认证,五菱汽车app进行车主认证教程!
暗区突围:无限
星痕共鸣
无限暖暖下载
建造天空岛网页版官网
我的爱车2016老版本下载
模拟生存大冒险app下载官方
米加小镇房子装修app下载安装官方下载
DNF掌游宝2018旧版本下载安装
中介游2022下载旧版
指尖游戏交易电脑版网页
库巴手游2022旧版本下载
尔雅畅游下载官方
kaya游戏盒子2020旧版本下载安装
魔娱司手机网页版
1号游戏福利电脑版网页
享趣手游pc网页版入口